التقديمالطلبةالهيئتان التدريسية والإداريةالخريجونالمكتبةالوظائفدعم الجامعةمدونة الجامعةدليل الإتصال English

LogoAjman University

  • القبول
    • برامج البكالوريوس
      • آلية القبول لبرامج البكالوريوس
      • دليل الطالب لبرامج البكالوريوس
      • الرسوم الدراسية
      • الدليل الشامل للطالب
      • سياسة القبول في برامج البكالوريوس
    • الطلبة المحولون الى برامج البكالوريوس
    • البرامج غير الأكاديمية
    • برامج الماجستير
      • متطلبات القبول
      • الرسوم الدراسية
      • دليل الطالب لبرامج الماجستير
      • الدليل الشامل لطالب الماجستير
      • سياسة القبول في برامج الدراسات العليا
    • الطلبة المحولون الى برامج الدراسات العليا
    • جامعة عجمان اختيارك الأمثل
    • مكتب المنح الدراسية والمساعدات المالية
    • مكتب استقطاب الطلبة
    • استفسار
  • الشؤون الأكاديمية
    • نائب مدير الجامعة للشؤون الأكاديمية
    • الكليات
    • البرامج و التخصصات الأكاديمية
    • التقويم الأكاديمي
    • مركز التعليم المستمر
    • الإستشارات الأكاديمية
    • دليل أعضاء الهيئة التدريسية
    • دليل السياسات و الإجراءات الإدارية
    • مركز التعلّم والتدريس
    • الشؤون الأكاديمية الدولية
    • مكتبة
  • البحث العلمي
    • رسالة العميد
      • التواصل
    • استراتيجية البحث العلمي
      • الرسالة ، الرؤية و الأهداف
    • البحث العلمي في جامعة عجمان
      • اللجان العلمية
      • مراكز البحوث العلمية
      • نشر البحوث و المقالات
    • لجنة أخلاقيات البحث العلمي
    • التعاون البحثي
    • الدراسات العليا
    • سياسات و إجراءات البحث العلمي
    • مستجدات البحث العلمي
    • أبرز البحوث العلمية
  • الحياة الطلابية
    • عمادة شؤون الطلبة
    • مكتب الحياة الطلابية
      • الأندية والهيئات الطلابية
      • الفنون الجميلة
      • برامج إعداد القادة
      • النشاط الرياضي
      • النشرات الطلابية
      • Office of Student Life Past Activites
    • وحدة الإرشاد الطلابي
    • السكن الجامعي
      • خدمات السكن الجامعي
      • الغرف و الرسوم
      • ضوابط الإقامة في السكن الجامعي
      • جولة افتراضية في السكن الجامعي
      • السكن الجامعي للطلاب معرض الصور
      • Past Hostel Activities
    • الخدمات الصحية
      • العيادة الطبية
      • سياسة تقديم الخدمات الطبية
      • تعليمات الفحص الطبي
      • طاقم الخدمات الطبية
      • استمارة الفحص الطبي
      • Important Health Documents Links Procedures and Steps
      • الأنشطة السابقة للخدمات الصحية
    • وحدة النقل الجامعي
    • مركز النجاح الطلابي
      • المعلمون الأقران
      • ممثلون عن الكليات
      • Student Support Resources
      • SSC Upcoming Activities
      • SSC Past Activities
    • Center For Inclusive Learning
      • Past Activities
      • Upcoming Activities
  • الإعلام
    • الأخبار
    • الفعاليات
    • التقرير الإعلامي
    • AU Roundup
    • من مكتب الدكتور كريم الصغير، مدير الجامعة
  • عن الجامعة
    • قصتنا
    • الرؤية والرسالة والقيم
    • تنوع الجنسيات
    • مجلس الأمناء
    • مكتب مدير الجامعة
    • الإدارة العليا لجامعة عجمان
    • الإعتماد و التصنيف الأكاديمي
    • المسؤولية المجتمعية
    • استراتيجية 2022-2027
    • الهيكل الإداري التنظيمي لموظفي جامعة عجمان
    • استكشف
    • الاستدامة في جامعة عجمان
    • حقائق سريعة
    • الأهداف التعليمية
    • مخرجات التعلم المؤسسية

LogoAjman University

  • القبول
    • برامج البكالوريوس
      • آلية القبول لبرامج البكالوريوس
      • دليل الطالب لبرامج البكالوريوس
      • الرسوم الدراسية
      • الدليل الشامل للطالب
      • سياسة القبول في برامج البكالوريوس
    • الطلبة المحولون الى برامج البكالوريوس
    • البرامج غير الأكاديمية
    • برامج الماجستير
      • متطلبات القبول
      • الرسوم الدراسية
      • دليل الطالب لبرامج الماجستير
      • الدليل الشامل لطالب الماجستير
      • سياسة القبول في برامج الدراسات العليا
    • الطلبة المحولون الى برامج الدراسات العليا
    • جامعة عجمان اختيارك الأمثل
    • مكتب المنح الدراسية والمساعدات المالية
    • مكتب استقطاب الطلبة
    • استفسار
  • الشؤون الأكاديمية
    • نائب مدير الجامعة للشؤون الأكاديمية
    • الكليات
    • البرامج و التخصصات الأكاديمية
    • التقويم الأكاديمي
    • مركز التعليم المستمر
    • الإستشارات الأكاديمية
    • دليل أعضاء الهيئة التدريسية
    • دليل السياسات و الإجراءات الإدارية
    • مركز التعلّم والتدريس
    • الشؤون الأكاديمية الدولية
    • مكتبة
  • البحث العلمي
    • رسالة العميد
      • التواصل
    • استراتيجية البحث العلمي
      • الرسالة ، الرؤية و الأهداف
    • البحث العلمي في جامعة عجمان
      • اللجان العلمية
      • مراكز البحوث العلمية
      • نشر البحوث و المقالات
    • لجنة أخلاقيات البحث العلمي
    • التعاون البحثي
    • الدراسات العليا
    • سياسات و إجراءات البحث العلمي
    • مستجدات البحث العلمي
    • أبرز البحوث العلمية
  • الحياة الطلابية
    • عمادة شؤون الطلبة
    • مكتب الحياة الطلابية
      • الأندية والهيئات الطلابية
      • الفنون الجميلة
      • برامج إعداد القادة
      • النشاط الرياضي
      • النشرات الطلابية
      • Office of Student Life Past Activites
    • وحدة الإرشاد الطلابي
    • السكن الجامعي
      • خدمات السكن الجامعي
      • الغرف و الرسوم
      • ضوابط الإقامة في السكن الجامعي
      • جولة افتراضية في السكن الجامعي
      • السكن الجامعي للطلاب معرض الصور
      • Past Hostel Activities
    • الخدمات الصحية
      • العيادة الطبية
      • سياسة تقديم الخدمات الطبية
      • تعليمات الفحص الطبي
      • طاقم الخدمات الطبية
      • استمارة الفحص الطبي
      • Important Health Documents Links Procedures and Steps
      • الأنشطة السابقة للخدمات الصحية
    • وحدة النقل الجامعي
    • مركز النجاح الطلابي
      • المعلمون الأقران
      • ممثلون عن الكليات
      • Student Support Resources
      • SSC Upcoming Activities
      • SSC Past Activities
    • Center For Inclusive Learning
      • Past Activities
      • Upcoming Activities
  • الإعلام
    • الأخبار
    • الفعاليات
    • التقرير الإعلامي
    • AU Roundup
    • من مكتب الدكتور كريم الصغير، مدير الجامعة
  • عن الجامعة
    • قصتنا
    • الرؤية والرسالة والقيم
    • تنوع الجنسيات
    • مجلس الأمناء
    • مكتب مدير الجامعة
    • الإدارة العليا لجامعة عجمان
    • الإعتماد و التصنيف الأكاديمي
    • المسؤولية المجتمعية
    • استراتيجية 2022-2027
    • الهيكل الإداري التنظيمي لموظفي جامعة عجمان
    • استكشف
    • الاستدامة في جامعة عجمان
    • حقائق سريعة
    • الأهداف التعليمية
    • مخرجات التعلم المؤسسية
  1. الرئيسية
  2. استكشف
  3. المرافق الخاصة بأصحاب الهمم
  • مركز الشيخ زايد
  • عن إمارة عجمان
  • عن الإمارات العربية المتحدة
  • الخرائط والاتجاهات
  • المقرات
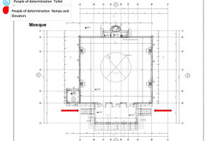
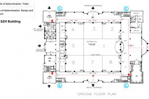
  • المرافق الخاصة بأصحاب الهمم

المرافق الخاصة بأصحاب الهمم

 

المخطط الرئيسي للمداخل والمواقف

تحميل الخريطة

تحذير ملفات تعريف الارتباط

هذا الموقع يستخدم ملفات تعريف الارتباط لتعزيز تجربة المستخدم. باستخدامك هذا الموقع، فإنك توافق على شروط سياسة الخصوصية الخاصة بنا.

الحرم الجامعي
  • الحرم الجامعي في عجمان
  • خريطة الموقع
روابط سريعة
  • عن الجامعة
  • التقويم الجامعي
  • الاعتمادات والتصنيفات الأكاديمية
  • الخريجون
  • Blog
  • الوظائف
  • تنوع الجنسيات
  • التعليم الإلكتروني
  • الشركاء الدوليون
  • عن الجامعة
  • المسؤولية المجتمعية
  • الخطة الاستراتيجية
  • التخطيط المؤسسي و الفعالية
  • حرم جامعي مستدام
  • صندوق ثامر للتكافل التعليمي
  • تسجيل الموردين
  • الوثائق المؤسسية
القبول والتسجيل
  • الدراسات الجامعية
  • البرامج المطروحة
  • إجراءات القبول العامة
  • الدليل الشامل للطلبة
  • دليل الطلبة
  • سياسة القبول في برامج البكالوريوس
  • الدراسات العليا
  • البرامج المطروحة
  • الوثائق المطلوبة
  • الدليل الشامل للطلبة
  • دليل الطلبة
  • سياسة القبول في برامج الدراسات العليا

+ 971 6 748 2222الصندوق البريدي لجامعة عجمان: 346
عجمان، الإمارات العربية المتحدة
Ajman University Logo

تواصل معنا

حقوق النشر محفوظة © جامعة عجمان 2001 - 2026 التحديث الأخير - فبراير 13, 2026